+39 041 5242866 studio@studiozordan.it
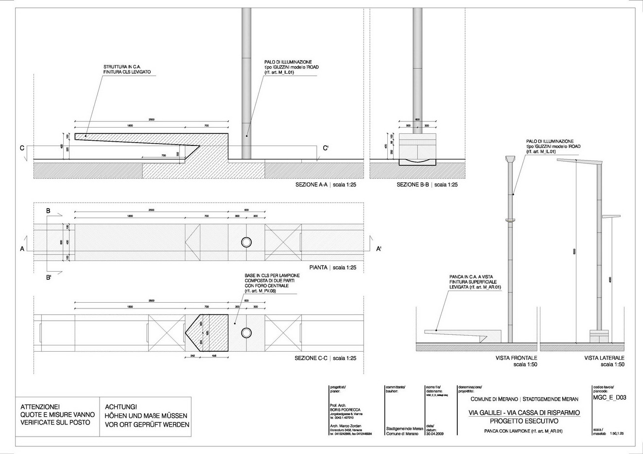
Planimetriaesecutivi panza, lampione

Via Galilei e Piazza Cassa di Risparmio a Merano (BZ)

con Boris Podrecca (architetto incaricato)

Progetto preliminare e definitivo per il riassetto degli spazi pubblici.

Anno: 2009

panca